Choosing a pre-designed floor plan is one of the smartest ways to build your dream home with confidence and efficiency. Floor plans offer the perfect balance between customization and convenience — allowing you to start with a thoughtfully designed layout that can be tailored to your lifestyle, taste, and budget. With key architectural details already refined, you’ll save time on design and planning while still enjoying the freedom to personalize finishes, features, and spaces that make your home truly yours.

Beyond design flexibility, floor plans streamline the construction and permitting process, helping your project move from concept to completion faster. Pre-approved layouts often simplify local review and approval, reducing costly delays and allowing building to begin sooner. For homeowners who value both quality and momentum, Anderson Family Construction’s curated floor plans deliver proven designs, expert craftsmanship, and exceptional value — so you can start living in your new home sooner, with confidence that every detail has been thoughtfully planned.

Ready to take the next step toward your dream home? Explore our collection of customizable floor plans and discover how easy it is to create a home that fits your vision, timeline, and budget. Contact Anderson Family Construction today to schedule a consultation and see how our proven designs can bring your new home to life — faster, smarter, and beautifully built to last.

Klahanie

Klahanie

Anderson-Homes-Cameron4

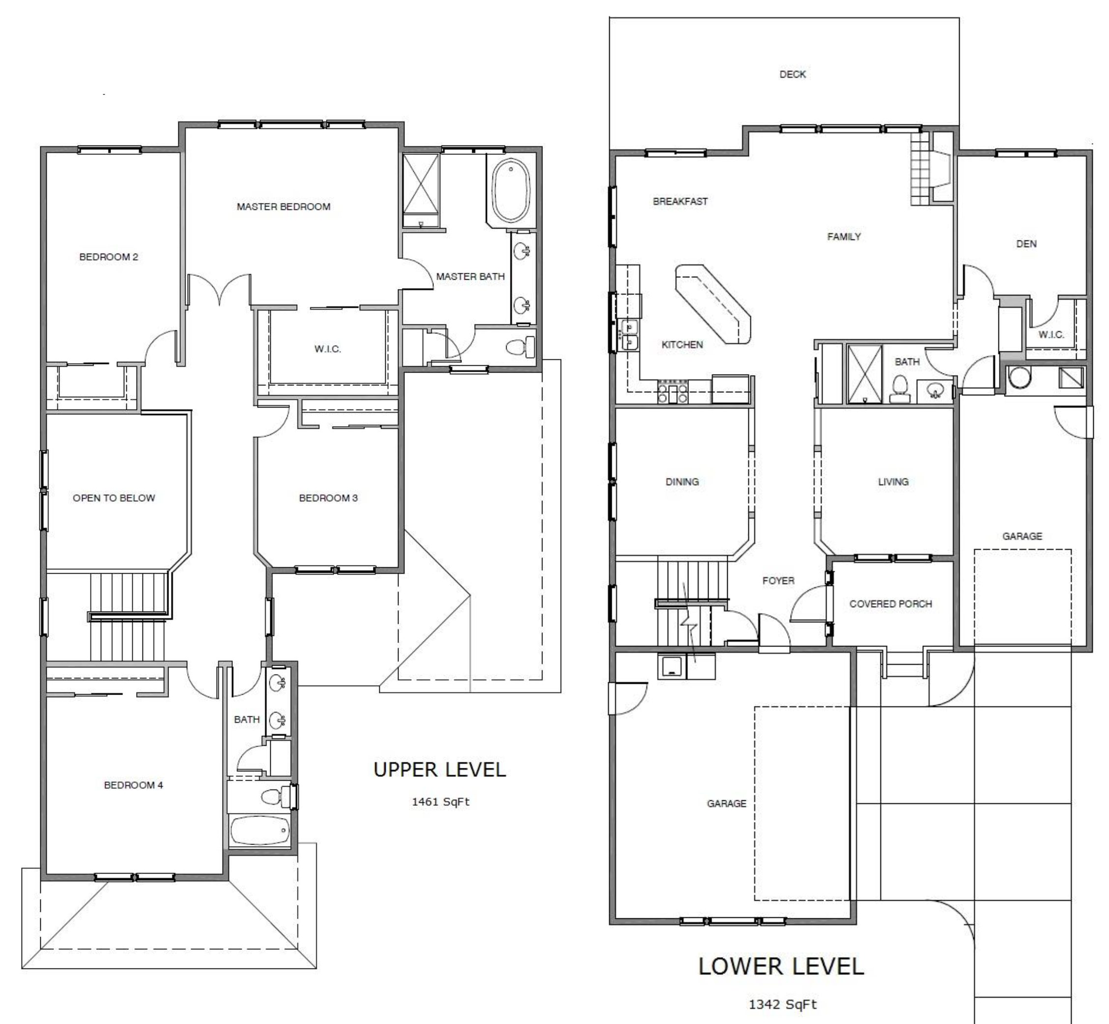
Cameron

Anderson-Homes-Madison3

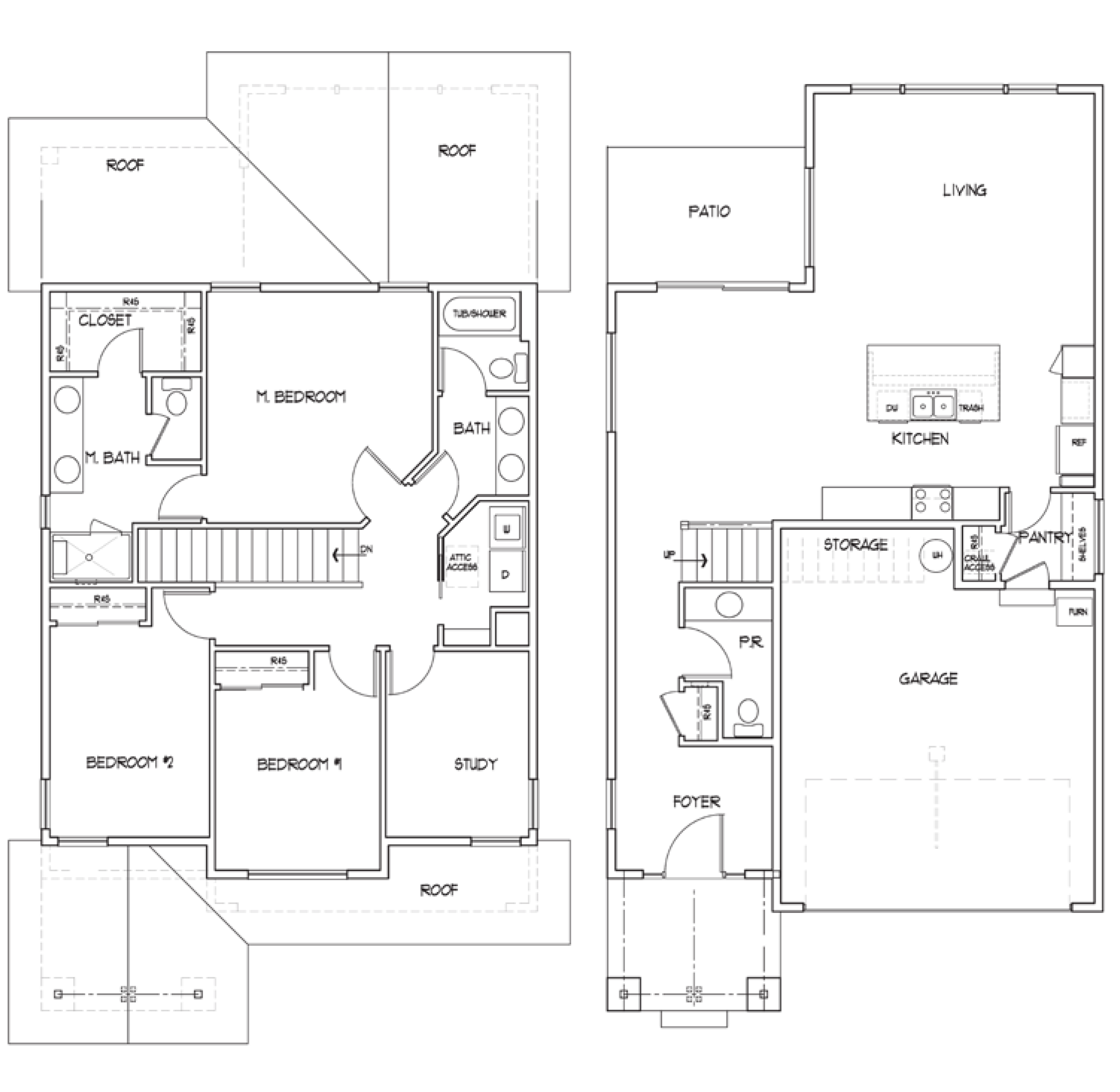
Madison